Casa INGÁ I 127m2
Descripción General
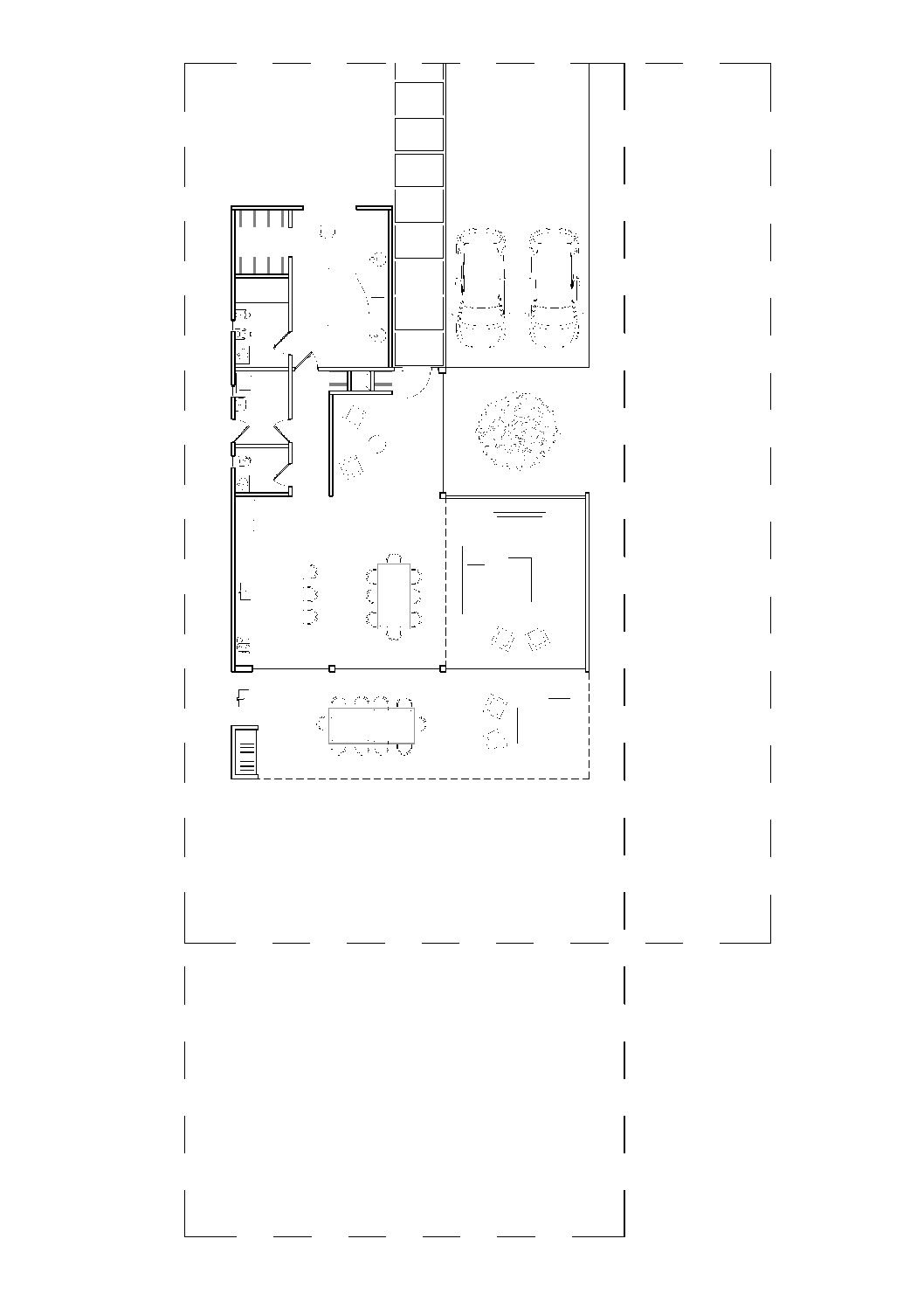
Ingá I propone una vivienda compacta de 127 m² organizada para ofrecer confort, buena iluminación y una vida diaria simple. Es un hogar práctico que se adapta a distintos tipos de uso.
Arquitectura y Envolvente
La envolvente eficiente y la disposición de aberturas aseguran buena iluminación y circulación de aire. La arquitectura favorece una lectura limpia del espacio y un uso cómodo de cada ambiente.
Distribución Interior
1 dormitorio
Baño completo
Estar–comedor integrado
Cocina abierta
Lavadero
Espacio exterior adaptable
Es ideal como vivienda permanente compacta, segunda residencia o inversión de renta, gracias a su practicidad y bajo mantenimiento.
Otros modelos
-
hpr03
Casa ANCHICO I 127m2
-
hpr03
Casa ANCHICO II 220 m²
-
hpr03
Casa INGÁ II 220m2
-
hpr03
Casa CEDRO I 127m2






