Casa CEDRO II 220m2
Descripción General
La vivienda Cedro II distribuye 220 m² en dos plantas que separan naturalmente la vida social del descanso. Es un modelo amplio, equilibrado y preparado para familias que buscan comodidad.
Arquitectura y Envolvente
La envolvente eficiente y la disposición de aberturas permiten una iluminación generosa y una ventilación adecuada en cada nivel. La arquitectura ordena los usos, reforzando privacidad en la planta alta.
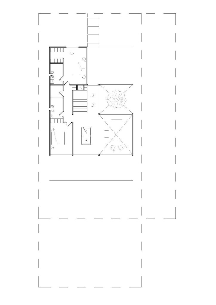
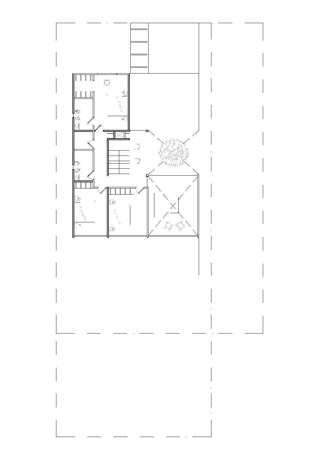
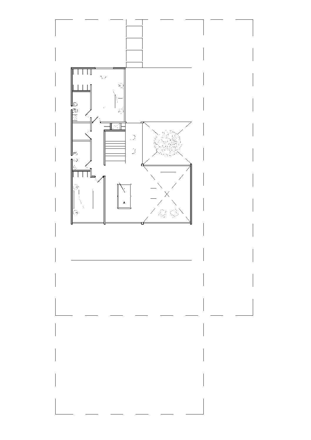
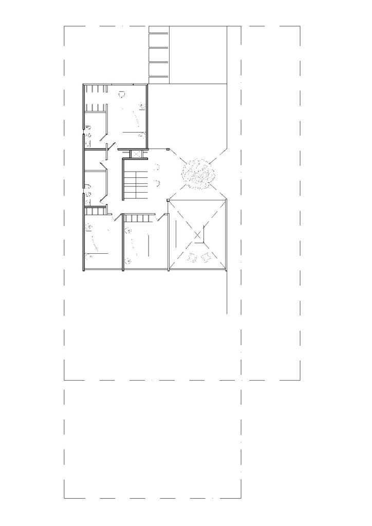
Distribución Interior
Planta Baja:
Estar–comedor
Cocina integrada
Toilette
Lavadero
Planta Alta:
2–4 dormitorios
Baños completos
Es una vivienda versátil que acompaña rutinas familiares variadas y permite integrar espacios de trabajo, estudio o expansión exterior.
Otros modelos
-
hpr03
Casa INGÁ I 127m2
-
hpr03
Casa ANCHICO I 127m2
-
hpr03
Casa ANCHICO II 220 m²
-
hpr03
Casa INGÁ II 220m2










