Casa AMBA’Y II 243m2

Descripción General

La vivienda Amba’y II ofrece una estructura amplia de 243 m² distribuidos en dos plantas, pensada para familias que requieren comodidad y ambientes bien definidos. La propuesta combina una zona social generosa con un sector privado que favorece intimidad y organización.

Arquitectura y Envolvente

La envolvente eficiente y la orientación cuidada permiten un uso óptimo de la luz natural, manteniendo una temperatura agradable en diferentes momentos del día. La volumetría distingue las áreas públicas y privadas, logrando una lectura clara del espacio y un funcionamiento ordenado.

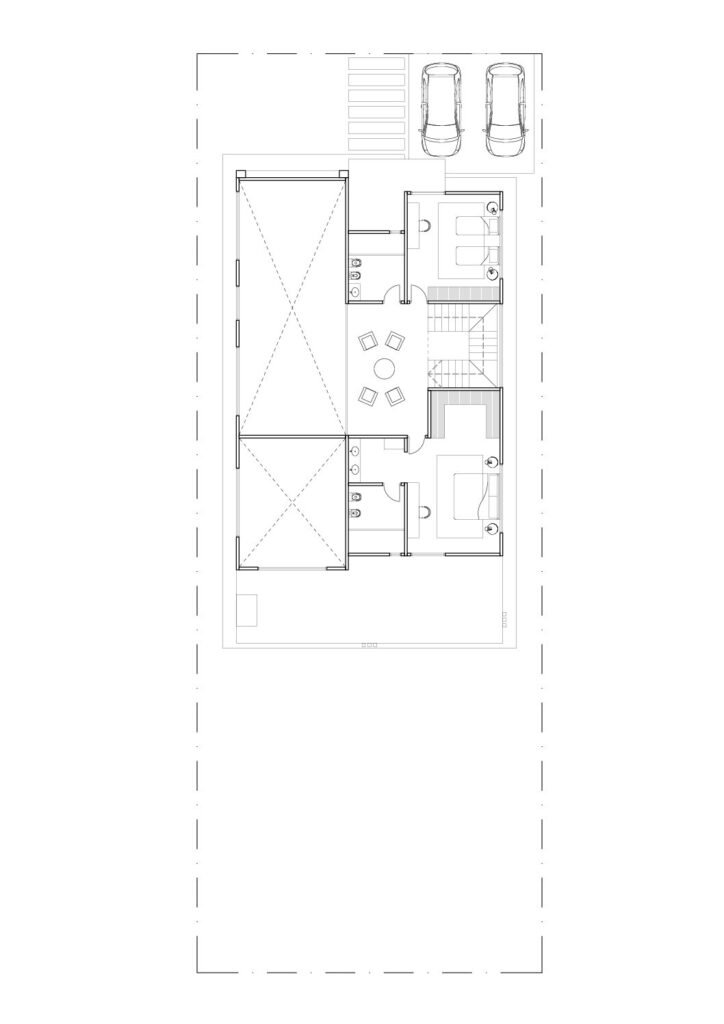
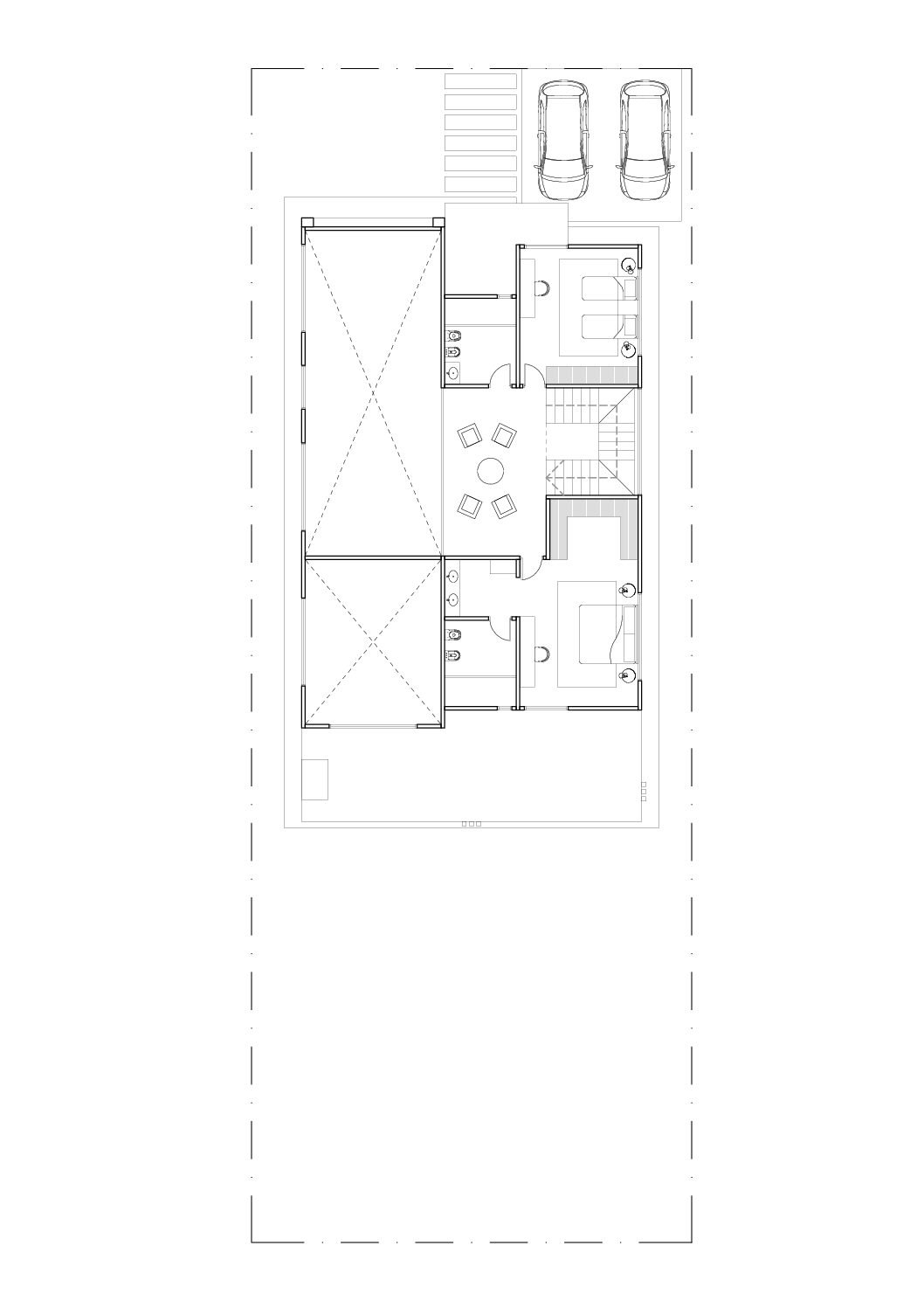
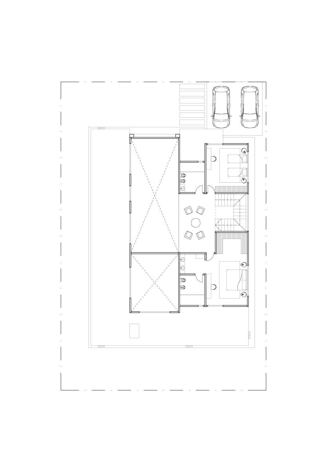
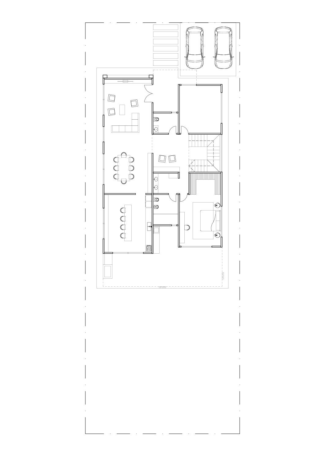
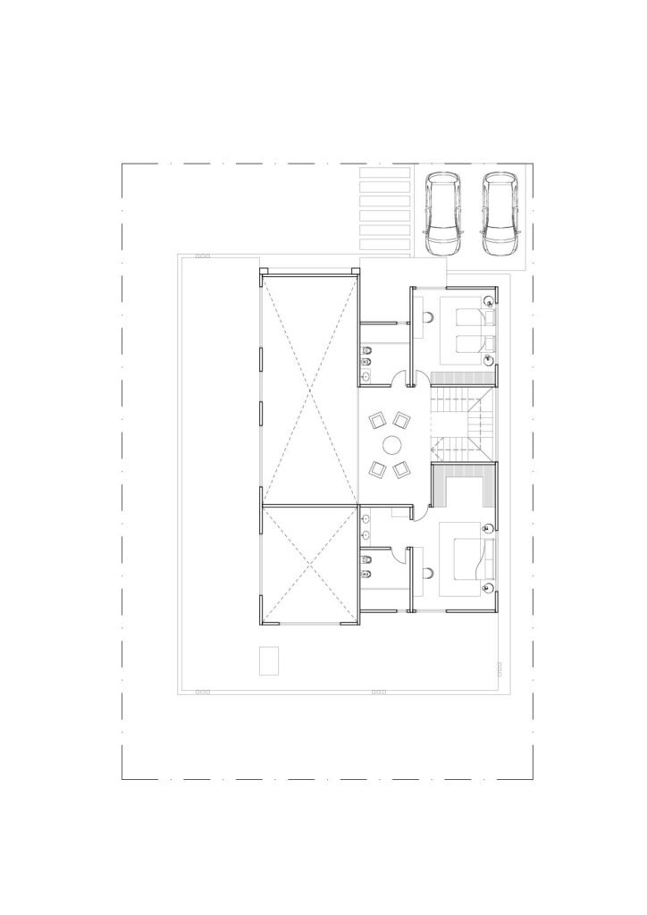
Distribución Interior

Planta Baja:
Estar–comedor integrado
Cocina amplia vinculada a la galería
Lavadero independiente
Toilette

Planta Alta:
3–4 dormitorios según configuración
Baños completos con luz natural

Su diseño favorece la vida familiar, con espacios para estudio o trabajo y áreas sociales preparadas para actividades cotidianas y encuentros. Es un modelo que acompaña el crecimiento y ofrece un alto nivel de confort en la vida diaria.

Ficha técnica

Tipología HPR01
Variante 1
Superficie cubierta 243.00 m²
Plantas 2
Dormitorios 3-4
Baños 3
Toilette
Lavadero
Shopping Cart