Casa CAMBOATÁ II 243m2

Descripción General

Camboatá II ofrece 243 m² en dos plantas que organizan la vida social en la planta baja y el descanso en la planta alta. Es un modelo pensado para familias que buscan comodidad, amplitud y un diseño claro.

Arquitectura y Envolvente

La arquitectura prioriza funcionalidad y bienestar, con una envolvente que mejora la eficiencia térmica y una disposición que permite iluminación natural en los puntos clave del programa.

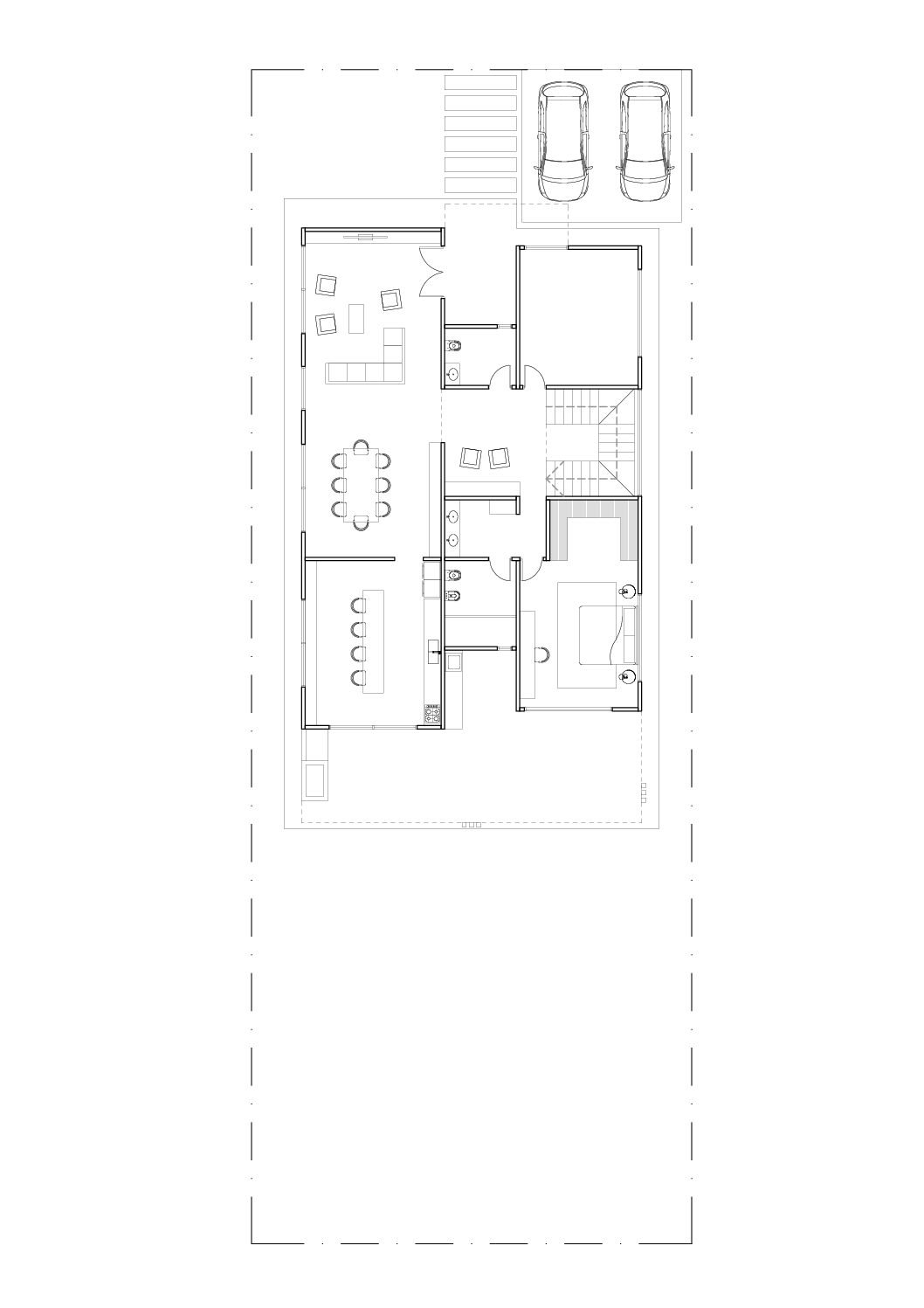
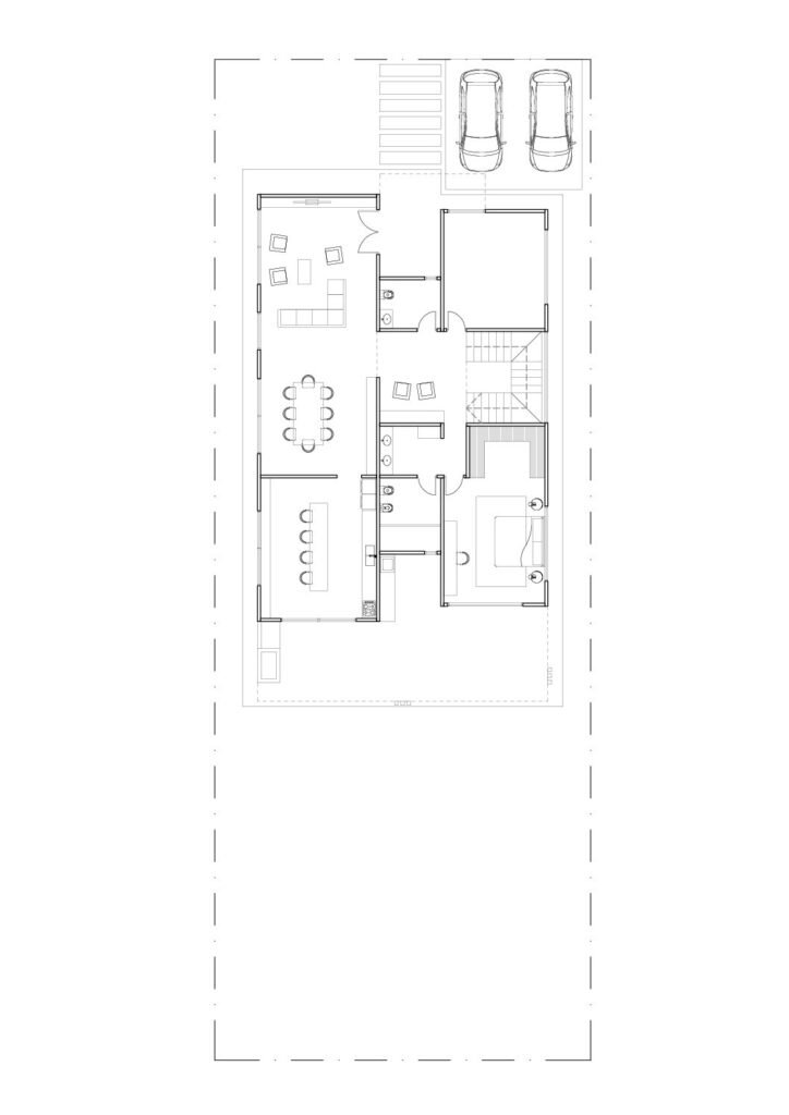
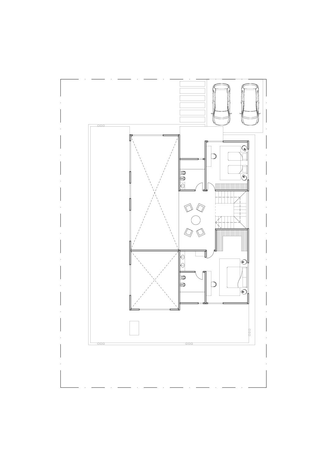
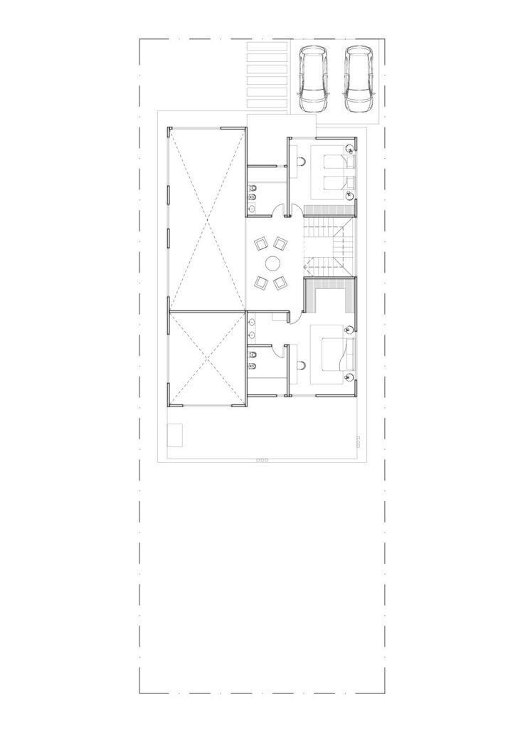
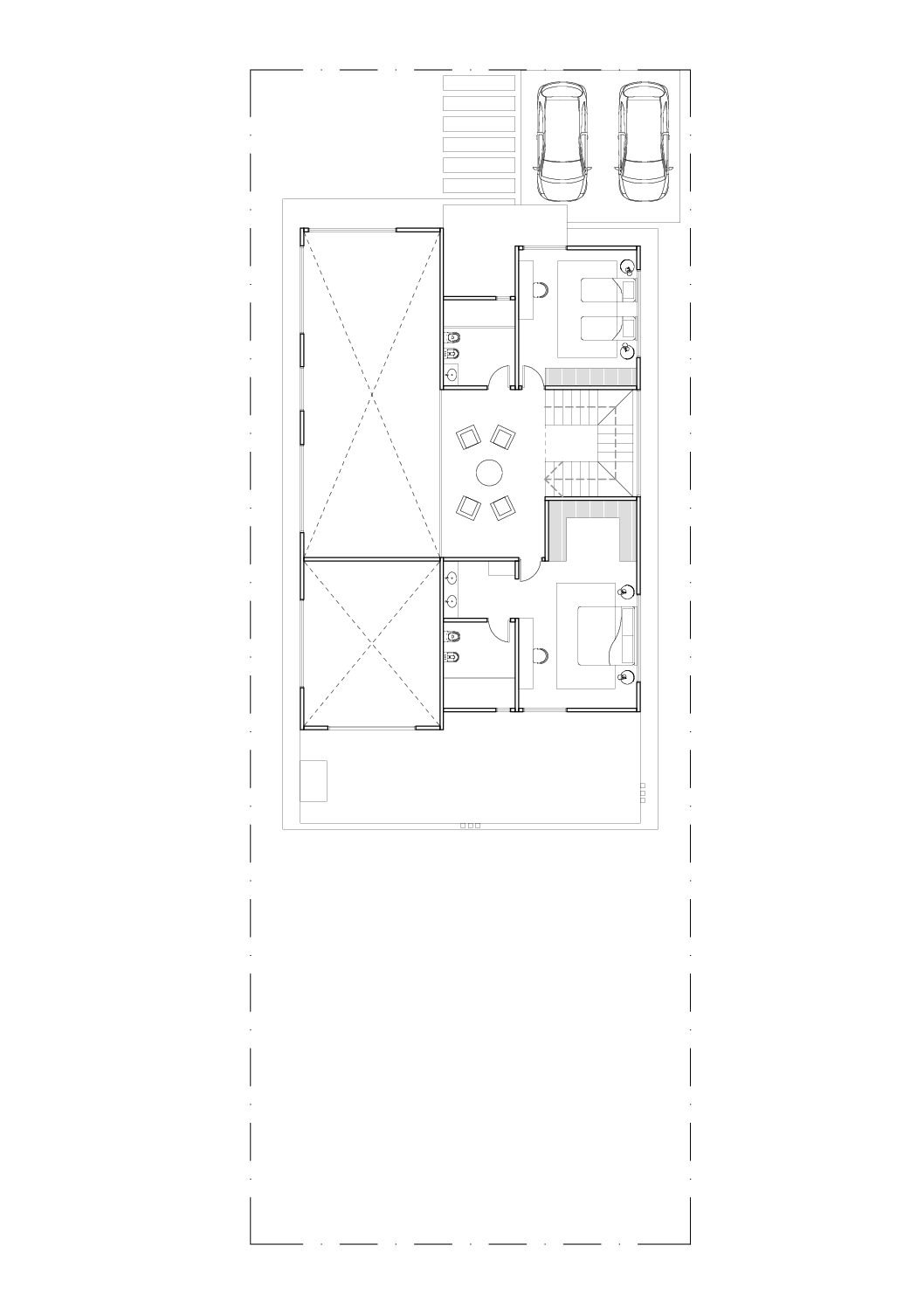
Distribución Interior

Planta Baja:
Estar–comedor amplio
Cocina integrada
Toilette
Lavadero

Planta Alta:
3–4 dormitorios
Baños completos

Es una vivienda que acompaña el desarrollo familiar, ofreciendo sectores de trabajo o estudio y espacios preparados para actividades sociales al aire libre.

Ficha técnica

Tipología HPR01
Variante 3
Superficie cubierta 243.00 m²
Plantas 2
Dormitorios 3-4
Baños 3
Toilette
Lavadero
Shopping Cart