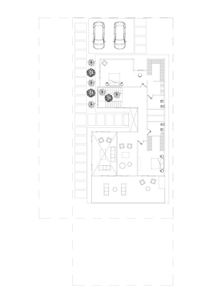
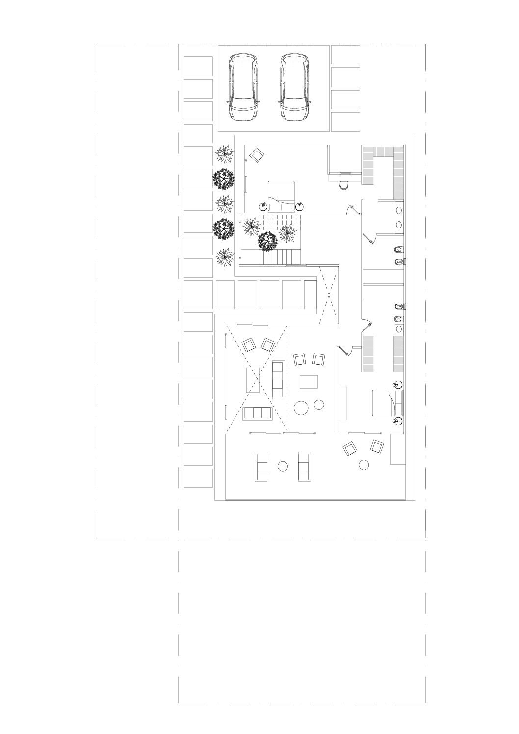
Casa TIMBÓ II 298m2
Descripción General
Timbó II ofrece 298 m² distribuidos en dos plantas con una organización que facilita convivencia, privacidad y actividades múltiples. Es una vivienda amplia preparada para acompañar la dinámica familiar.
Arquitectura y Envolvente
La disposición de aberturas y la envolvente eficiente aseguran ambientes luminosos y estables. La volumetría distingue las áreas sociales en planta baja y los dormitorios en planta alta, aportando orden y comodidad.
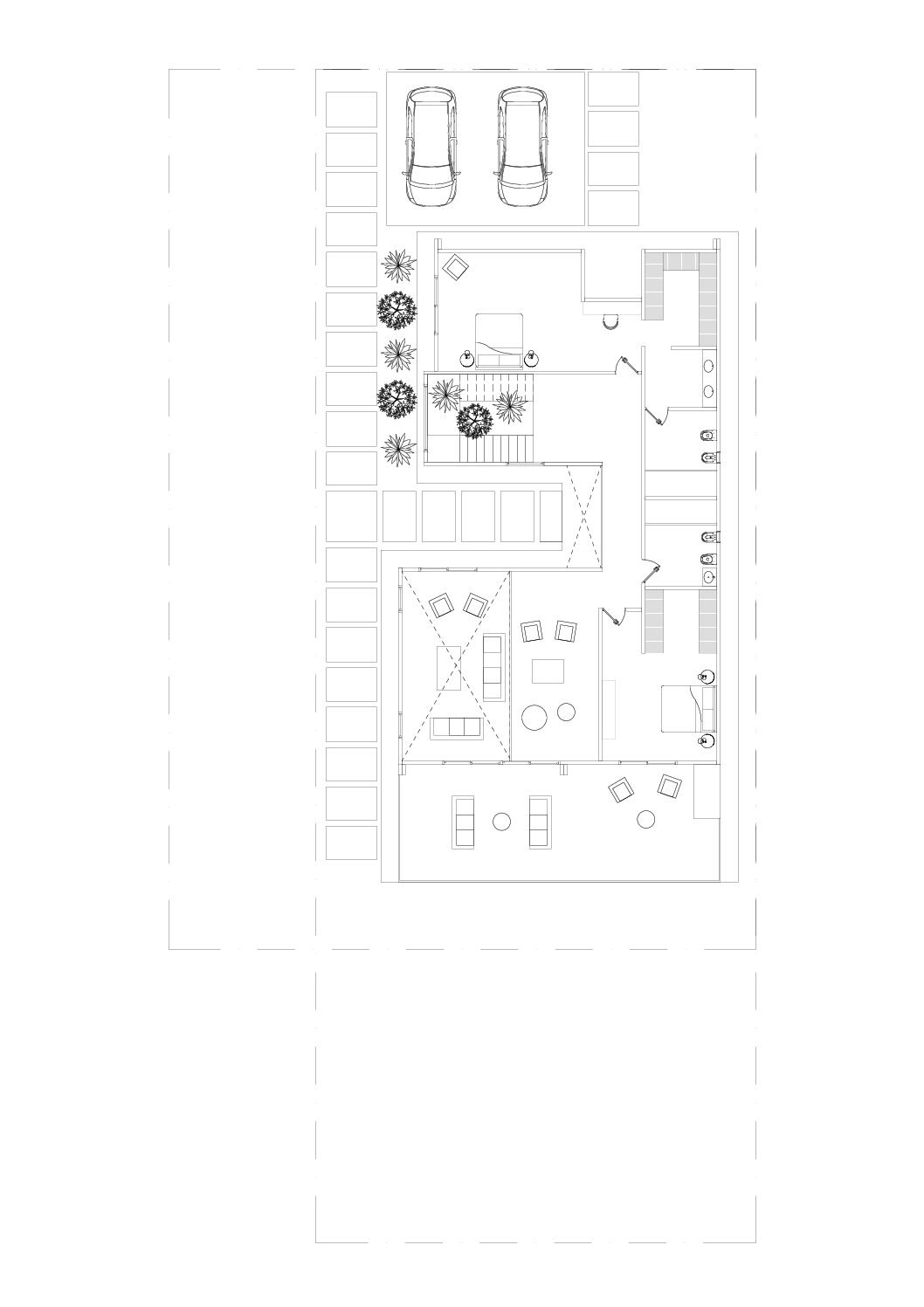
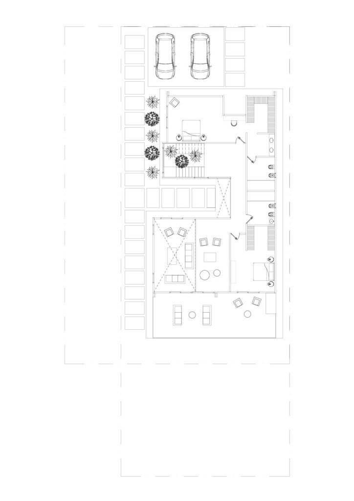
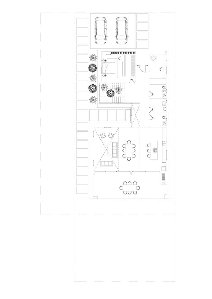
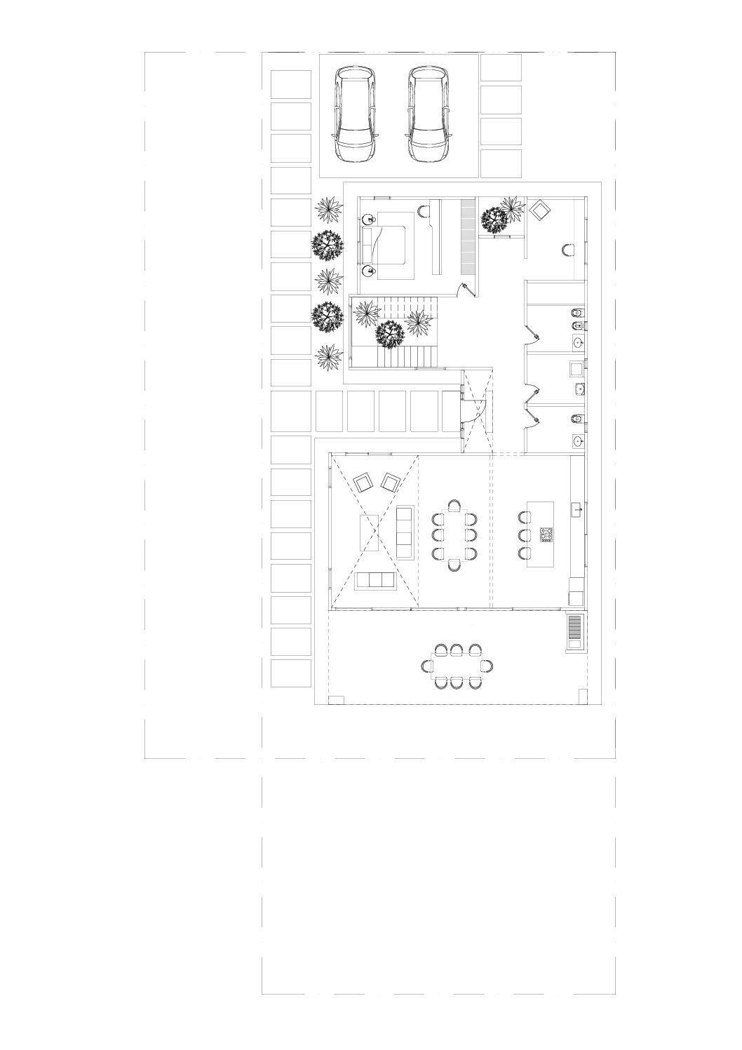
Distribución Interior
Planta Baja:
Estar–comedor
Cocina integrada
Toilette
Lavadero
Planta Alta:
3–4 dormitorios
Baños completos
Es un hogar preparado para usos diversos: vida familiar, estudio, trabajo remoto y actividades sociales, manteniendo siempre una sensación de amplitud.
Otros modelos
-
hpr02
Casa TIMBÓ I 162m2
-
hpr02
Casa GUAYUBIRÁ I 162m2
-
hpr02
Casa ALECRÍN I 162m2
-
hpr02
Casa GUAYUBIRÁ II 298m2













